中古一戸建て 加古川市西神吉町大国
所在地
加古川市西神吉町大国
320万円
22.56坪
5DK
★JR宝殿駅まで徒歩17分
西神吉認定こども園 304m
大歳公園 327m
セブン-イレブン加古川西神吉店 367m
月々の
支払例
支払例
万円
年
%
円
※みなと銀行/借入金320万円、返済期間40年、金利0.595%変動金利)の場合
※審査により金利は変わる可能性があります。
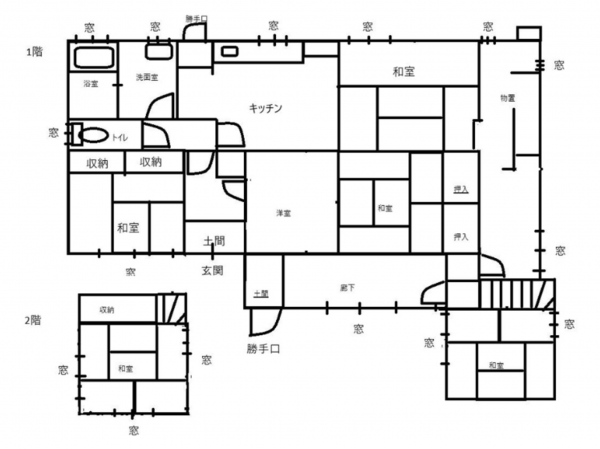
物件概要
- 交通
-
JR山陽本線 宝殿駅 まで 徒歩17分
- 接道状況
- 西側 公道2m 間口約10m
- 土地面積
- 公簿 198.28㎡ (59.97坪)
- 建物面積
- 74.58㎡ (22.56坪)
- 築年数
-
1968年
(昭和43)
8月
築57年 - 建ぺい率
- 60%
- 容積率
- 200%
- 土地権利
- 所有権
- 構造および階数
- 軽量鉄骨造 地上1階建
- 小学校区
- 西神吉 ( 850m )
- 中学校区
- 神吉 ( 1300m )
- 私道負担
- 無
- 地目
- 宅地
- 現況
- 空
- 引渡時期
- 即時
- 駐車場
- 有
- 上水道
- 公共
- 下水道
- 公共
- ガス
- 都市ガス
- 都市計画
- 市街化調整区域
- 用途地域
- 設備・条件
- 備考
- 取引態様
- 仲介
